富丘分譲 TO-23
For sale
RID HOUSEのモデルハウス販売
売却済
富丘分譲 TO-23
洗練された雰囲気のシンプルテイストな住宅
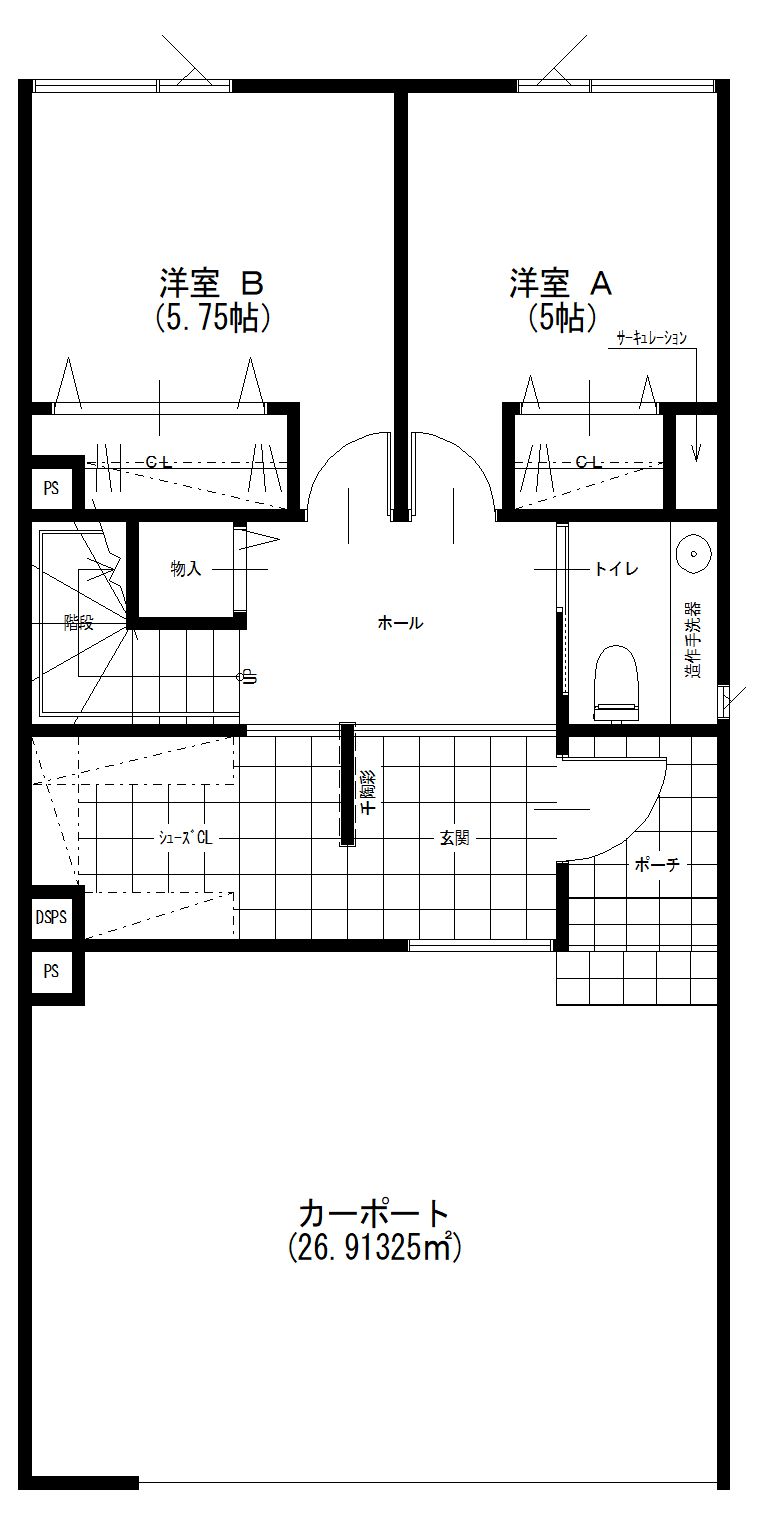
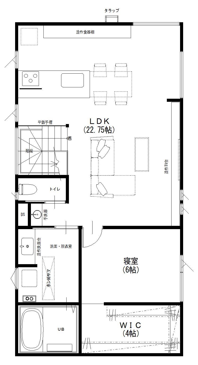
間取り
3LDK建物⾯積
110.55㎡(約33.37坪)⼟地⾯積
118.71㎡(約35.90坪)所在地
札幌市手稲区富丘1条所在地
札幌市手稲区富丘1条Model house
モデルハウス
機能美が息づく、
最新のデザイン住宅を体験
※モデルハウスの見学は、事前のご予約が必要です。
※お急ぎの場合や、当日予約の方はお電話で承っております。
Contact
お問い合わせ・資料請求
理想の住まいへの第一歩、
ぜひご相談ください。
北海道全域対応RID HOUSE 対応エリア
札幌市 江別市 千歳市 恵庭市 北広島市 石狩市 当別町 新篠津村 岩見沢市 夕張市 美唄市 芦別市 赤平市 三笠市 滝川市 砂川市 歌志内市 深川市 南幌町 奈井江町 上砂川町 由仁町 長沼町 栗山町 月形町 浦臼町 新十津川町 妹背牛町 秩父別町 雨竜町 北竜町 沼田町 小樽市 倶知安町 寿都町 黒松内町 蘭越町 ニセコ町 喜茂別町 京極町 共和町 岩内町 積丹町 古平町 仁木町 余市町 島牧村 真狩村 留寿都村 泊村 神恵内村 赤井川村 室蘭市 苫小牧市 登別市 伊達市 豊浦町 洞爺湖町 壮瞥町 白老町 厚真町 安平町 むかわ町 日高町 平取町 新冠町 浦河町 様似町 えりも町 新ひだか町 函館市 北斗市 松前町 福島町 知内町 木古内町 七飯町 鹿部町 森町 八雲町 長万部町 江差町 上ノ国町 厚沢部町 乙部町 奥尻町 今金町 せたな町 旭川市 士別市 名寄市 富良野市 鷹栖町 東神楽町 当麻町 比布町 愛別町 上川町 東川町 美瑛町 上富良野町 中富良野町 南富良野町 占冠村 和寒町 剣淵町 下川町 美深町 音威子府村 中川町幌加内町 留萌市 増毛町 小平町 苫前町 羽幌町 初山別村 遠別町 天塩町 稚内市 猿払村 浜頓別町 中頓別町 枝幸町 豊富町 礼文町 利尻町 利尻富士町 幌延町 北見市 網走市 紋別市 大空町 美幌町 津別町 斜里町 清里町 小清水町 訓子府町 置戸町 佐呂間町 遠軽町 湧別町 滝上町 興部町 西興部村 雄武町 帯広市 音更町 士幌町 上士幌町 鹿追町 新得町 清水町 芽室町 中札内村 更別村 大樹町 広尾町 幕別町 池田町 豊頃町 本別町 足寄町 陸別町 浦幌町 釧路市 釧路町 厚岸町 浜中町 標茶町 弟子屈町 鶴居村 白糠町 根室市 別海町 中標津町 標津町 羅臼町

